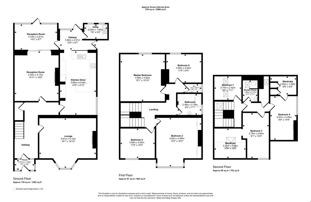
Properties for sale in NE26