St. Peters Road, Byker, Newcastle upon Tyne, Tyne and Wear, NE6 2FW

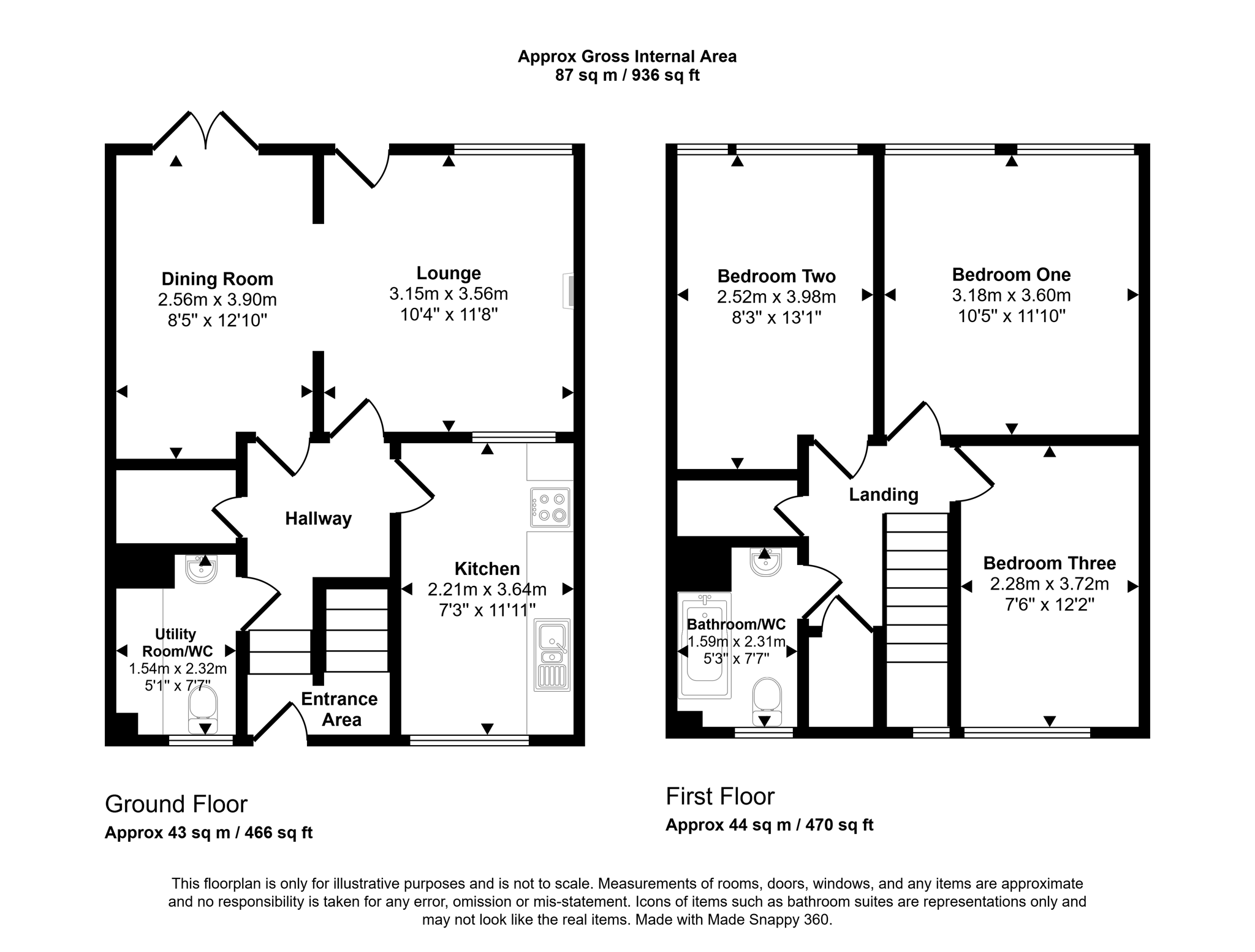
With doors off to the lounge, dining room, kitchen, utility room, large cupboard/cloakroom and stairs to the first floor.

3.71m x 3.26m (12'2" x 10'8")
UPVC double glazed window to the rear, electric fire in feature surround, door to the rear garden and radiator.

4.05m x 2.60m (13'3" x 8'6")
UPVC double glazed French doors to the rear garden and radiator.

3.73m x 2.28m (12'2" x 7'5")
With a good range of wall and base units, complimenting work surfaces, one and a half sink with mixer tap, space for appliances, UPVC double glazed window and radiator.

2.41m x 1.59m (7'10" x 5'2")
With low level WC, hand wash basin, bench space, plumbed for washing machine and UPVC double glazed window.
With doors off to all bedrooms, bathroom/WC and large storage cupboard.

3.67m x 3.28m (12'0" x 10'9")
UPVC double glazed window to the rear and radiator.

4.09m x 2.59m (13'5" x 8'5")
UPVC double glazed window to the rear and radiator.

3.82m x 2.31m (12'6" x 7'6")
UPVC double glazed window to the front and radiator.

2.39m x 1.60m (7'10" x 5'2")
White three piece bathroom suite comprising; bath with shower, hand wash basin, low level WC, tiled walls, UPVC double glazed window and radiator.

West facing private rear garden which is mainly laid to artificial lawn, decked area, shed and fenced boundaries.
Whether you’d like an instant online estimate or an expert visit to discuss your home in detail, our team will give you clear, honest advice and help you plan your next move.

Find out what your current home could sell for, based on real market data and recent sales.
Get seen everywhere buyers look
Fast, secure and often great value. Discover how it works.
