Sinclair Drive, North Lodge, Chester Le Street, Durham, DH3 4BJ
Sliding glazed metal door, tiled flooring, leads to entrance hallway.

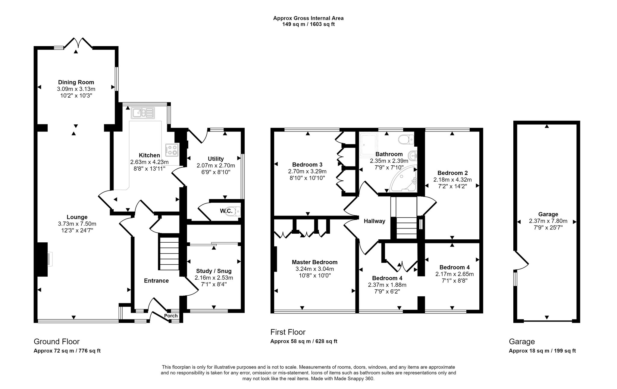
Part-glazed wooden entrance door, staircase to first floor, gas central heating radiator, carpet flooring.

7.75m x 3.83m (25'5" x 12'6")
Front aspect double glazed UPVC window, gas central heating radiator, gas fire, carpet flooring, open plan to dining room.

3.15m x 3.08m (10'4" x 10'1")
Double glazed UPVC window to side aspect, gas central heating radiator, French doors opening to the garden, carpet flooring, serving hatch to kitchen.

4.46m x 2.72m (14'7" x 8'11")
Rear aspect double glazed window, fitted with wall and base units and roll-top work surfaces, stainless steel sink, tiled splashbacks, recess lighting, gas connection, gas central heating radiator, vinyl flooring, UPVC door leading to utility room.

3.66m x 2.16m (12'0" x 7'1")
Side aspect double glazed UPVC window, UPVC door to garden, part-glazed, plumbing for washing machine, space for tumble dryer, combi boiler, vinyl flooring, door to cloakroom.

W/C, tiled walls, vinyl flooring

3.23m x 2.23m (10'7" x 7'3")
Front aspect double glazed UPVC window, gas central heating radiator, built-in storage, carpet flooring.
Loft access, carpet flooring.

3.24m x 3.04m (10'7" x 9'11")
Well-proportioned double bedroom. Front aspect double glazed UPVC window, gas central heating radiator, built-in wardrobe, carpet flooring.

4.32m x 2.18m (14'2" x 7'1")
Rear aspect double glazed UPVC window, gas central heating radiator, carpet flooring.

3.29m x 2.70m (10'9" x 8'10")
A good-sized double bedroom. Rear aspect double glazed UPVC window, gas central heating radiator, built-in wardrobe, carpet flooring.

2.17m x 2.65m (7'1" x 8'8")
Two front aspect double glazed UPVC windows, gas central heating radiator, built-in storage, carpet flooring.

2.39m x 2.35m (7'10" x 7'8")
Rear aspect double glazed UPVC window, pedestal wash hand basin, WC, bath, mains shower, separate shower cubicle, tiled walls, recess lighting, vinyl flooring, gas central heating radiator, chrome towel rail.

To the front: Walled garden with lawn and decorative borders, pathway leading to entrance, gated access to rear garden. To the rear: Private, low-maintenance garden with well-maintained lawn, block-paved driveway, long single garage with electric roller shutter, gated access to rear lane.

7.80m x 2.37m (25'7" x 7'9")
Long single garage, with power and lights, electric roller door.
Timescales
Contracts will exchange immediately. There are 28 days in which to complete the purchase.
Legal Pack
A legal pack is available to download. Special conditions may apply.
We strongly recommend buyers familiarise themselves with the legal pack prior to bidding.
Deposit
In order to secure the purchase a buyer will pay a deposit of 5%, subject to a minimum £4000 which contributes towards the overall purchase price of the property.
The deposit is non-refundable.
Buyer Fees
This property is sold subject to a non-refundable reservation fee of 2.5%+ VAT to a minimum of £3,000 + VAT (£3,600 inc VAT) This does not form part of the purchase price.
More Information
For more information call our auction experts on 0191 206 9335 or email auctions@pattinson.co.uk
ONLINE AUCTION NOTICE
I hereby acknowledge and confirm the following:
My bid may be accepted by the seller at any time before the close of the auction. It is subject to the terms and conditions of the auction which I have read and understood. I have read and understood the legal pack applicable to my bid/lot and agree to be bound by any special conditions within that pack.
If my bid is successful (whether as the highest bid or upon acceptance by the seller in the course of the auction) I shall be bound by the lot terms and conditions as advertised online.
Any amount payable at the close of the auction must be paid within 1 hour.
Please note that the bidding process will work in a different way to an eBay auction, so there is NO advantage to bidding at the last second.
Each auction will automatically stay open until there has not been a bid within the final 10 minutes. If no bid has been submitted within the final 10 minutes of the auction, the auction will close and the highest bidder will be successful subject to the reserve price being met or upon acceptance of an offer by the seller throughout the auction cycle. If there is another bid within 10 minutes of the last bid, the auction countdown timer will be restarted for another 10 minutes to allow further bidding. This system avoids last-minute (or second) bidding and makes for a fairer auction as in a live-room auction situation.
Please bid in good time before the end of the auction, delaying your bid to the last seconds may disadvantage you if your connection slows or you lose internet connectivity.
The auctioneer is not responsible for any tech issues, power outage or error messages which hampers or eliminates an individual's opportunity to bid.
It is the bidder's responsibility to ensure the bid has been lodged with the auctioneer. It is therefore beneficial to bid on your chosen lot at your earliest opportunity.
The auctioneer accepts no responsibility for bids that are not received or are received late and reserves the right to reject any bid without notice.
Minimum online bidding increments:
£50,000 - £250 minimum bid
£50,001 to £150,000 - £500 minimum bid
£150,001 to £250,000 - £1,000 minimum bid
£250,001 to £750,001 - £2,500 minimum bid
£750,001 to £1.5 Million - £5,000 minimum bid
£1.5 Million Plus - £10,000 minimum bid
Please note this bidding process applies specifically to online auctions.
More Information is available:
For more information call our auction experts on 0191 206 9335 or email auctions@pattinson.co.uk
Please log in to view and download the legal pack files.
Whether you’d like an instant online estimate or an expert visit to discuss your home in detail, our team will give you clear, honest advice and help you plan your next move.

Find out what your current home could sell for, based on real market data and recent sales.
Get seen everywhere buyers look
Fast, secure and often great value. Discover how it works.
