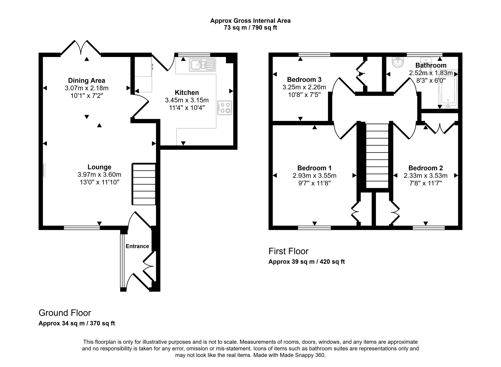
Clifton Court, Springwell, Gateshead, Tyne and Wear, NE9 7QH
Composite door, UPVC double glazed window, tiled floor

4.10m x 5.90m (13'5" x 19'4")
Open plan stairs, UPVC double glazed window, three radiators, UPVC double glazed double doors leading to the rear garden, wood type flooring, coal effect electric fire set to a feature fire surround

3.30m x 2.90m (10'9" x 9'6")
Fitted in a range of wall and base units, with gas hob, electric oven, space for an automatic washing machine, tiled walls, wall cupboard housing the combi boiler, UPVC double glazed door and window

Loft access

3.60m x 3.00m (11'9" x 9'10")
Fitted wardrobes, UPVC double glazed window, radiator, laminate flooring

4.00m x 2.30m (13'1" x 7'6")
(Measurements include a wardrobe)Two fitted wardrobes, UPVC double glazed window, radiator

2.30m x 4.70m (7'6" x 15'5")
(L'Shaped maximum measurements) UPVC double glazed window, radiator, fitted wardrobe

2.60m x 1.90m (8'6" x 6'2")
Three piece suite comprising a WC, wash basin, panelled bath with electric shower over, part tiled walls, UPVC double glazed window, radiator
Whether you’d like an instant online estimate or an expert visit to discuss your home in detail, our team will give you clear, honest advice and help you plan your next move.
Find out what your current home could sell for, based on real market data and recent sales.
Get seen everywhere buyers look
Fast, secure and often great value. Discover how it works.