Aldwych Road, Sunderland, Sunderland, Tyne and Wear, SR3 3EU

1.74m x 4.16m (5'8" x 13'7")
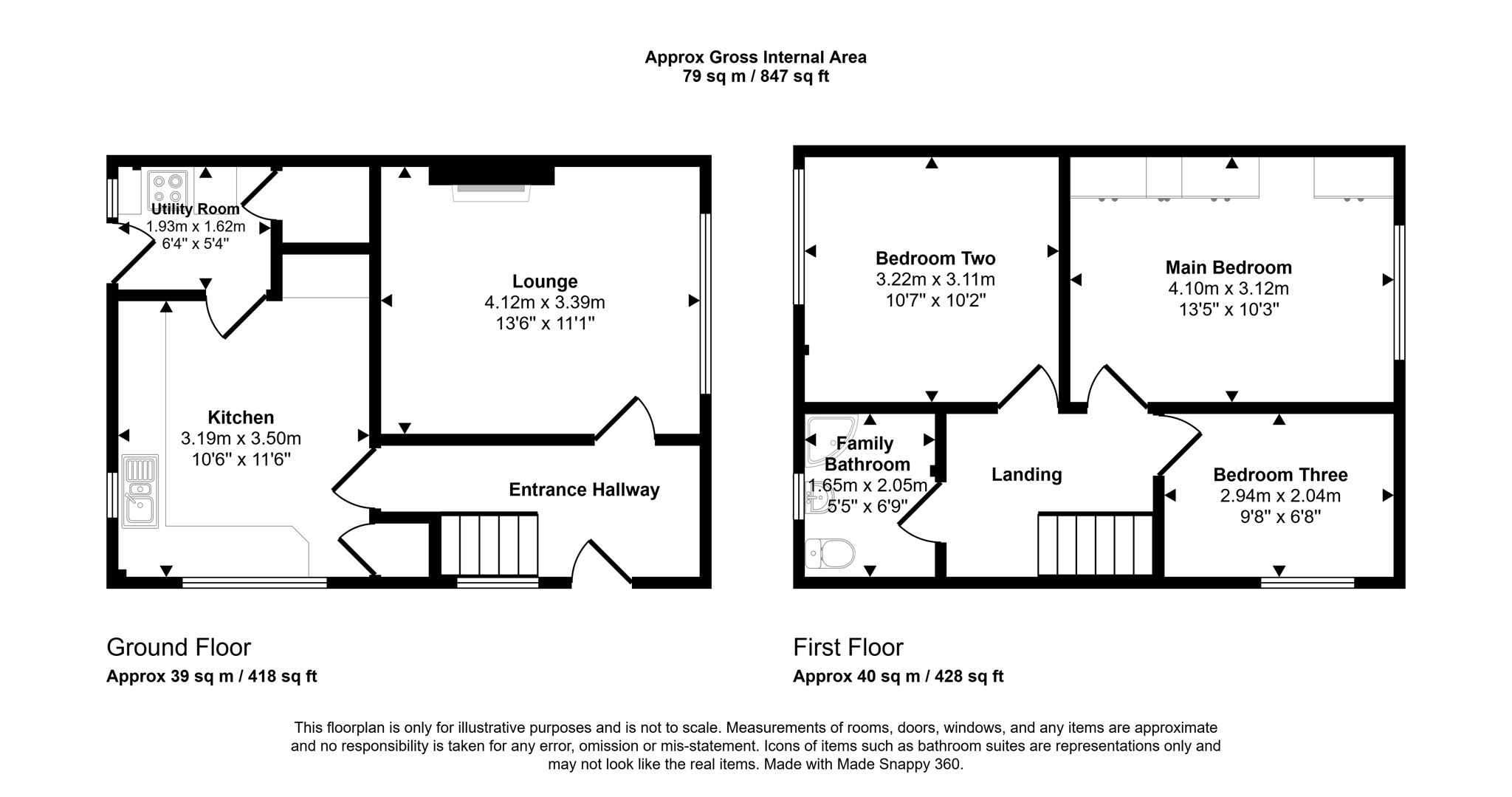
Briefly comprising of double glazed window, carpeted flooring, radiator, pendant light, stairs to first floor, doors to lounge and kitchen.

3.48m x 4.17m (11'5" x 13'8")
This light filled space briefly comprises of a large double glazed bay window, fireplace with feature stone surround, carpeted flooring, radiator and pendant light.

3.56m x 3.21m (11'8" x 10'6")
Fitted with wall and base units complemented by contrasting worktops and incorporating a sink with drainer, the room features two double glazed windows, plumbing for a washing machine, space for an under-counter fridge and freezer, a radiator, carpet flooring, a pendant light, a storage cupboard, and a Logic combi boiler mounted on the wall. The room also provides access to the utility room.

2.10m x 1.68m (6'10" x 5'6")
Briefly comprising base units, gas cooker hob, laminate flooring, tiled walls, storage cupboard, pendant light, and a door leading out to the rear yard.

2.12m x 2.66m (6'11" x 8'8")
Briefly comprising carpet flooring, pendant light, loft access, and doors leading to three bedrooms and the family bathroom.

3.20m x 4.20m (10'5" x 13'9")
A spacious room featuring a large double-glazed window that floods the space with natural light, radiator, coving, carpet flooring, fitted wardrobes, and a pendant light.

3.22m x 3.29m (10'6" x 10'9")
Briefly comprising a double-glazed window, radiator, coving, and a pendant light.

2.15m x 3.03m (7'0" x 9'11")
Briefly comprising a double glazed window, radiator and pendant light.

2.11m x 1.68m (6'11" x 5'6")
This room features a low-level WC, pedestal wash hand basin, shower cubicle, radiator, double-glazed window, partially panelled walls, laminate flooring, and a pendant light.

To the front is a well-maintained lawned garden bordered by mature, private hedging, while to the rear there is a paved yard.
Whether you’d like an instant online estimate or an expert visit to discuss your home in detail, our team will give you clear, honest advice and help you plan your next move.

Find out what your current home could sell for, based on real market data and recent sales.
Get seen everywhere buyers look
Fast, secure and often great value. Discover how it works.
