Burn Park Road, Houghton Le Spring, Tyne and Wear, DH4 5DG
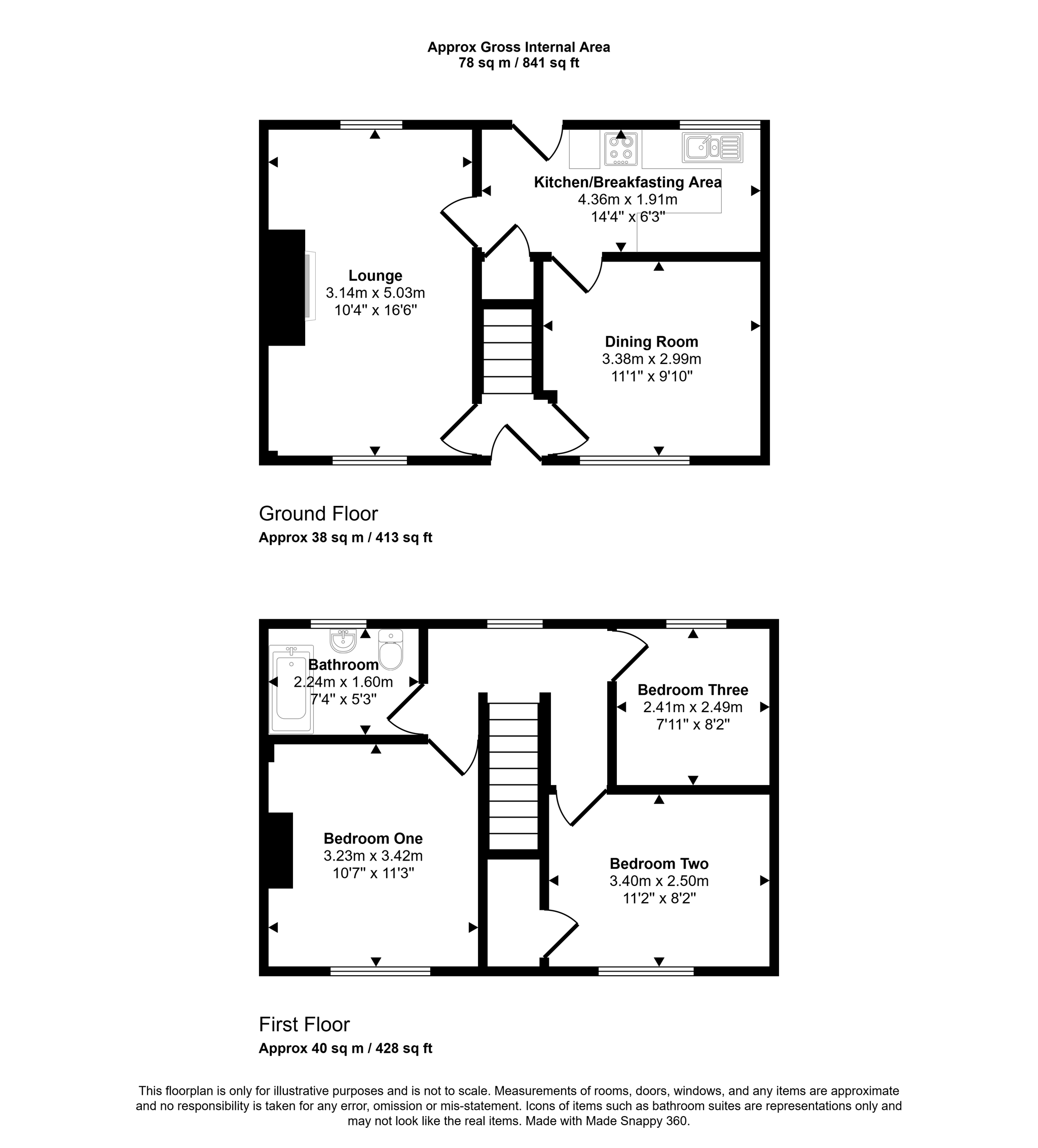
Property entrance leading to the hallway, which gives access to the lounge, diner and first floor staircase.

5.16m x 3.29m (16'11" x 10'9")
Spacious lounge with carpet flooring, a feature gas fireplace, two radiators, front and rear aspect double glazed windows.

3.08m x 3.50m (10'1" x 11'5")
Separate diner with carpet flooring, a radiator and a double glazed front aspect window.

2.18m x 4.44m (7'1" x 14'6")
Fitted kitchen benefiting from a range of upper and lower units with contrasting work surfaces and matching upstands, stainless steel sink unit, plumbing for a washing machine and a free standing oven. Vinyl flooring to the kitchen, carpet flooring to the breakfast section, tiled walls, a radiator, double glazed rear aspect window and an external door leading to the rear garden.

3.43m x 3.30m (11'3" x 10'9")
Double bedroom with a radiator and a double glazed front aspect window.

3.64m x 3.50m (11'11" x 11'5")
Double bedroom with carpet flooring, a large storage cupboard, a radiator and a double glazed front aspect window.

2.56m x 2.48m (8'4" x 8'1")
Third bedroom with carpet flooring, a radiator and a double glazed front aspect window.

1.66m x 2.37m (5'5" x 7'9")
Three piece bathroom benefiting from a panelled bath with an overhead shower, hand wash basin and W.C. Vinyl flooring, tiled splash back, a heated towel rail and a double glazed rear aspect window.

Externally to the front there is a fully enclosed garden and to the rear lies a South facing garden, which has the benefit of a gated driveway.
Whether you’d like an instant online estimate or an expert visit to discuss your home in detail, our team will give you clear, honest advice and help you plan your next move.

Find out what your current home could sell for, based on real market data and recent sales.
Get seen everywhere buyers look
Fast, secure and often great value. Discover how it works.
