Loraine Terrace, Lemington, Newcastle upon Tyne, Tyne and Wear, NE15 8EA


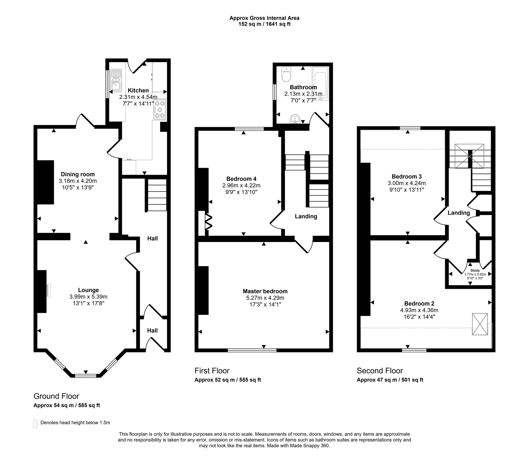
3.99m x 5.39m (13'1" x 17'8")

3.18m x 4.20m (10'5" x 13'9")

2.31m x 4.54m (7'6" x 14'10")

5.27m x 4.29m (17'3" x 14'0")
8 door fitted wardrobes and drawers

2.96m x 4.22m (9'8" x 13'10")

4.93m x 4.36m (16'2" x 14'3")

3.00m x 4.24m (9'10" x 13'10")
1.77m x 0.92m (5'9" x 3'0")


Whether you’d like an instant online estimate or an expert visit to discuss your home in detail, our team will give you clear, honest advice and help you plan your next move.

Find out what your current home could sell for, based on real market data and recent sales.
Get seen everywhere buyers look
Fast, secure and often great value. Discover how it works.
