Chipchase Court, Woodstone Village, Houghton Le Spring, Durham, DH4 6TT

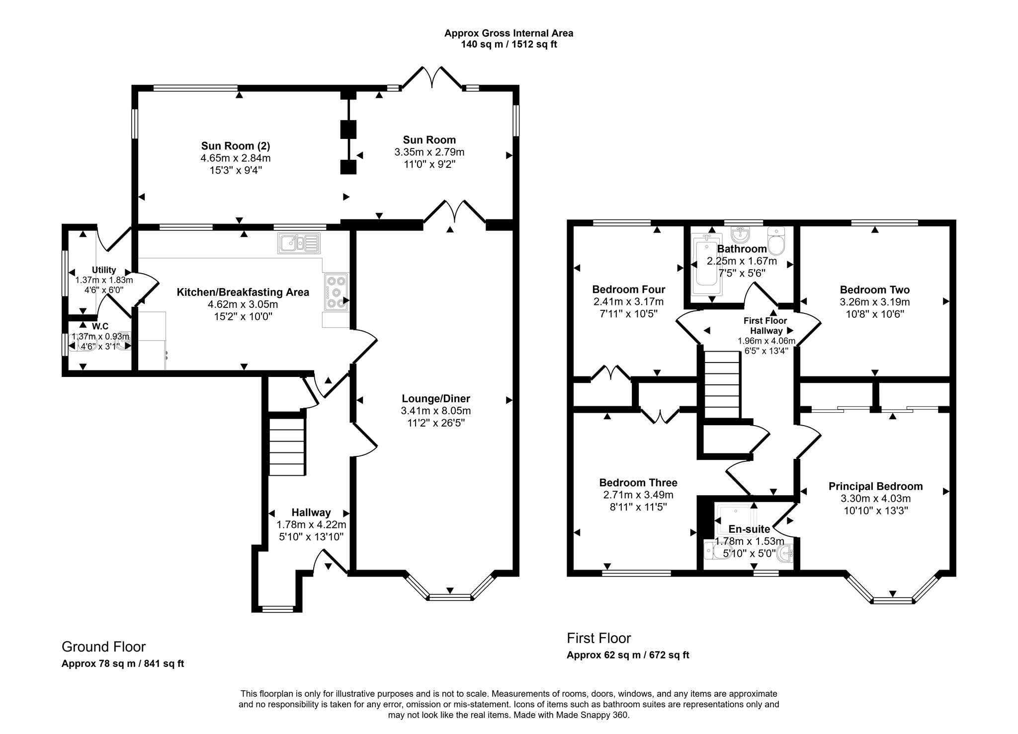
Property entrance leading to the hallway, which has carpet flooring, a radiator and under stair storage.

8.29m x 3.50m (27'2" x 11'5")
Open plan lounge with a carpet flooring, three radiators and a double glazed front aspect bay window. The lounge also gives access to the sun room via dual internal doors.

3.13m x 4.69m (10'3" x 15'4")
A modern kitchen/breakfast area benefiting from a range upper and lower units with contrasting worksurfaces, composite sink unit, an integrated dishwasher, fridge/freezer and Range oven with 5 burner gas hob. Tile flooring, tile splash back, a radiator and two double glazed rear aspect windows.

1.90m x 1.45m (6'2" x 4'9")
The utility has fitted base units, contrasting worktops, plumbing for washing machine and dryer. Tile flooring, tiled splash back, a radiator and an external door leading to the rear garden.

1.00m x 1.44m (3'3" x 4'8")
Convenient downstairs W.C with a hand wash basin, tile flooring, a radiator and a double glazed side aspect window.

2.92m x 8.39m (9'6" x 27'6")
This beautiful extension to the property stretches the full width of the property and has hardwood flooring, two radiators, three double glazed windows and French doors leading to the rear garden.

4.97m x 3.41m (16'3" x 11'2")
Double bedroom with an en-suite, fitted wardrobes, carpet flooring, a radiator and a double glazed front aspect bay window.

2.22m x 1.39m (7'3" x 4'6")
Convenient en-suite benefiting from a walk-in shower, W.C and a hand wash basin with a vanity cupboard. Tiled flooring, tiled walls, a radiator and double glazed front aspect window.

3.26m x 3.41m (10'8" x 11'2")
Double bedroom with carpet flooring, a radiator and a double glazed rear aspect window.

3.26m x 3.41m (10'8" x 11'2")
Double bedroom with integrated wardrobes, carpet flooring, a radiator and a double glazed front aspect window.

2.80m x 3.25m (9'2" x 10'7")
Double bedroom with integrated wardrobes, carpet flooring, a radiator and a double glazed rear aspect window.

1.74m x 2.28m (5'8" x 7'5")
Three piece family bathroom benefiting from a panelled bath with an overhead shower, W.C and hand wash basin. Tiled flooring, tiled walls, a radiator and a double glazed rear aspect window.

Externally to the front there is an open garden laid to lawn with a two car driveway and double garage, there is also gated access to the rear garden.

Externally to the rear lies a fully enclosed garden, which is laid to lawn, with a patio area adjacent to the property.
Whether you’d like an instant online estimate or an expert visit to discuss your home in detail, our team will give you clear, honest advice and help you plan your next move.
Find out what your current home could sell for, based on real market data and recent sales.
Get seen everywhere buyers look
Fast, secure and often great value. Discover how it works.