Wycliffe Avenue, Kenton, Newcastle upon Tyne, Tyne and Wear, NE3 4QT


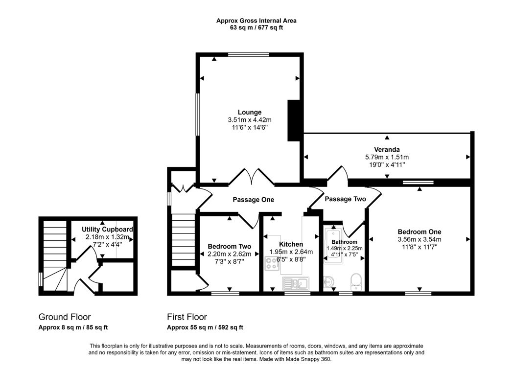
3.21m x 1.85m (10'6" x 6'0")

3.69m x 4.99m (12'1" x 16'4")

3.60m x 3.46m (11'9" x 11'4")

3.65m x 2.98m (11'11" x 9'9")

2.66m x 1.47m (8'8" x 4'9")

1.92m x 2.44m (6'3" x 8'0")
Timescales
Contracts will exchange immediately. There are 28 days in which to complete the purchase.
Legal Pack
A legal pack is available to download. Special conditions may apply.
We strongly recommend buyers familiarise themselves with the legal pack prior to bidding.
Deposit
In order to secure the purchase a buyer will pay a deposit of 5%, subject to a minimum £4,000 which contributes towards the overall purchase price of the property.
The deposit is non-refundable.
Buyer Fees
This property is sold subject to a non-refundable reservation fee of 2.5%+ VAT to a minimum of £3,000 + VAT (£3,600 inc VAT) This does not form part of the purchase price.
More Information
For more information call our auction experts on 0191 206 9335 or email auctions@pattinson.co.uk
ONLINE AUCTION NOTICE
I hereby acknowledge and confirm the following:
My bid may be accepted by the seller at any time before the close of the auction. It is subject to the terms and conditions of the auction which I have read and understood. I have read and understood the legal pack applicable to my bid/lot and agree to be bound by any special conditions within that pack.
If my bid is successful (whether as the highest bid or upon acceptance by the seller in the course of the auction) I shall be bound by the lot terms and conditions as advertised online.
Any amount payable at the close of the auction must be paid within 1 hour.
Please note that the bidding process will work in a different way to an eBay auction, so there is NO advantage to bidding at the last second.
Each auction will automatically stay open until there has not been a bid within the final 10 minutes. If no bid has been submitted within the final 10 minutes of the auction, the auction will close and the highest bidder will be successful subject to the reserve price being met or upon acceptance of an offer by the seller throughout the auction cycle. If there is another bid within 10 minutes of the last bid, the auction countdown timer will be restarted for another 10 minutes to allow further bidding. This system avoids last-minute (or second) bidding and makes for a fairer auction as in a live-room auction situation.
Please bid in good time before the end of the auction, delaying your bid to the last seconds may disadvantage you if your connection slows or you lose internet connectivity.
The auctioneer is not responsible for any tech issues, power outage or error messages which hampers or eliminates an individual's opportunity to bid.
It is the bidder's responsibility to ensure the bid has been lodged with the auctioneer. It is therefore beneficial to bid on your chosen lot at your earliest opportunity.
The auctioneer accepts no responsibility for bids that are not received or are received late and reserves the right to reject any bid without notice.
Minimum online bidding increments:
£50,000 - £250 minimum bid
£50,001 to £150,000 - £500 minimum bid
£150,001 to £250,000 - £1,000 minimum bid
£250,001 to £750,000 - £2,500 minimum bid
£750,001 to £1.5 Million - £5,000 minimum bid
£1.5 Million Plus - £10,000 minimum bid
Please note this bidding process applies specifically to online auctions.
More Information is available:
For more information, call our auction experts on 0191 206 9335 or email auctions@pattinson.co.uk
Please log in to view and download the legal pack files.
Whether you’d like an instant online estimate or an expert visit to discuss your home in detail, our team will give you clear, honest advice and help you plan your next move.

Find out what your current home could sell for, based on real market data and recent sales.
Get seen everywhere buyers look
Fast, secure and often great value. Discover how it works.
