Hallcroft Close, Billingham, Billingham, Durham, TS23 1QN
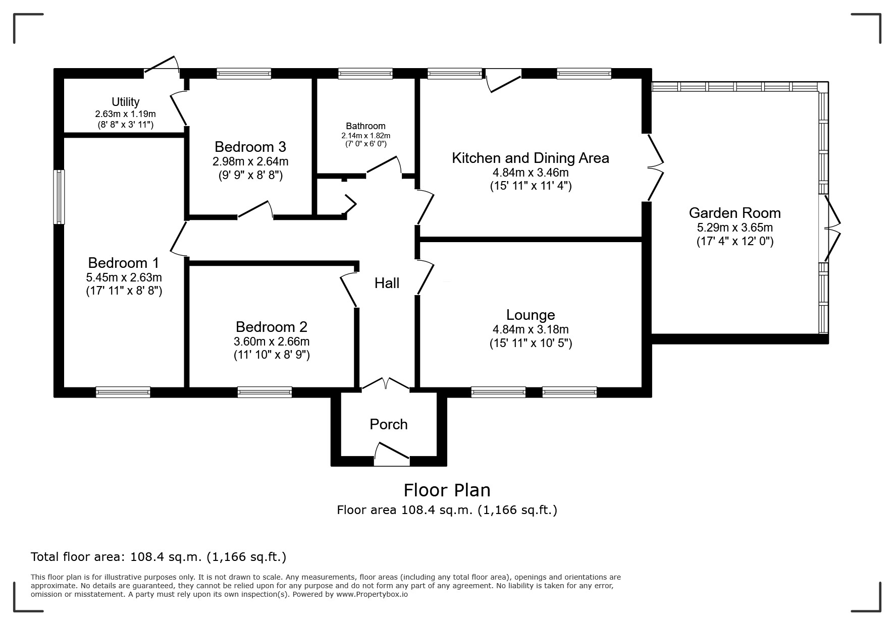
An entrance porch leads into the hallway.

4.84m x 3.18m (15'10" x 10'5")
Windows to the front.

4.84m x 3.46m (15'10" x 11'4")
Fitted with a range of wall, base and drawer units, work surfaces incorporate a sink and drainer. There is a range oven in situ, integrated dishwasher and a fridge freezer. Windows and a door to the rear. Double doors lead into the garden room.

5.29m x 3.65m (17'4" x 11'11")
Overlooking the side doors with French doors and a wood burning stove.

5.45m x 2.63m (17'10" x 8'7")
Windows.

3.66m x 2.66m (12'0" x 8'8")
Window.

2.98m x 2.94m (9'9" x 9'7")
Window.

2.14m x 1.82m (7'0" x 5'11")
Three piece white suite including a P shaped bath with a shower over, wash hand basin and a W.C, window.
Access from outside the property and with plumbing for a washing machine and room for a dryer.

Garden to the front and a driveway provides onsite parking. Access from the side leads to the rear where there is a private garden and continues through to the side garden that is of a generous size,
Whether you’d like an instant online estimate or an expert visit to discuss your home in detail, our team will give you clear, honest advice and help you plan your next move.

Find out what your current home could sell for, based on real market data and recent sales.
Get seen everywhere buyers look
Fast, secure and often great value. Discover how it works.
