Bell Street, Millfield, Sunderland, Tyne and Wear, SR4 6JR

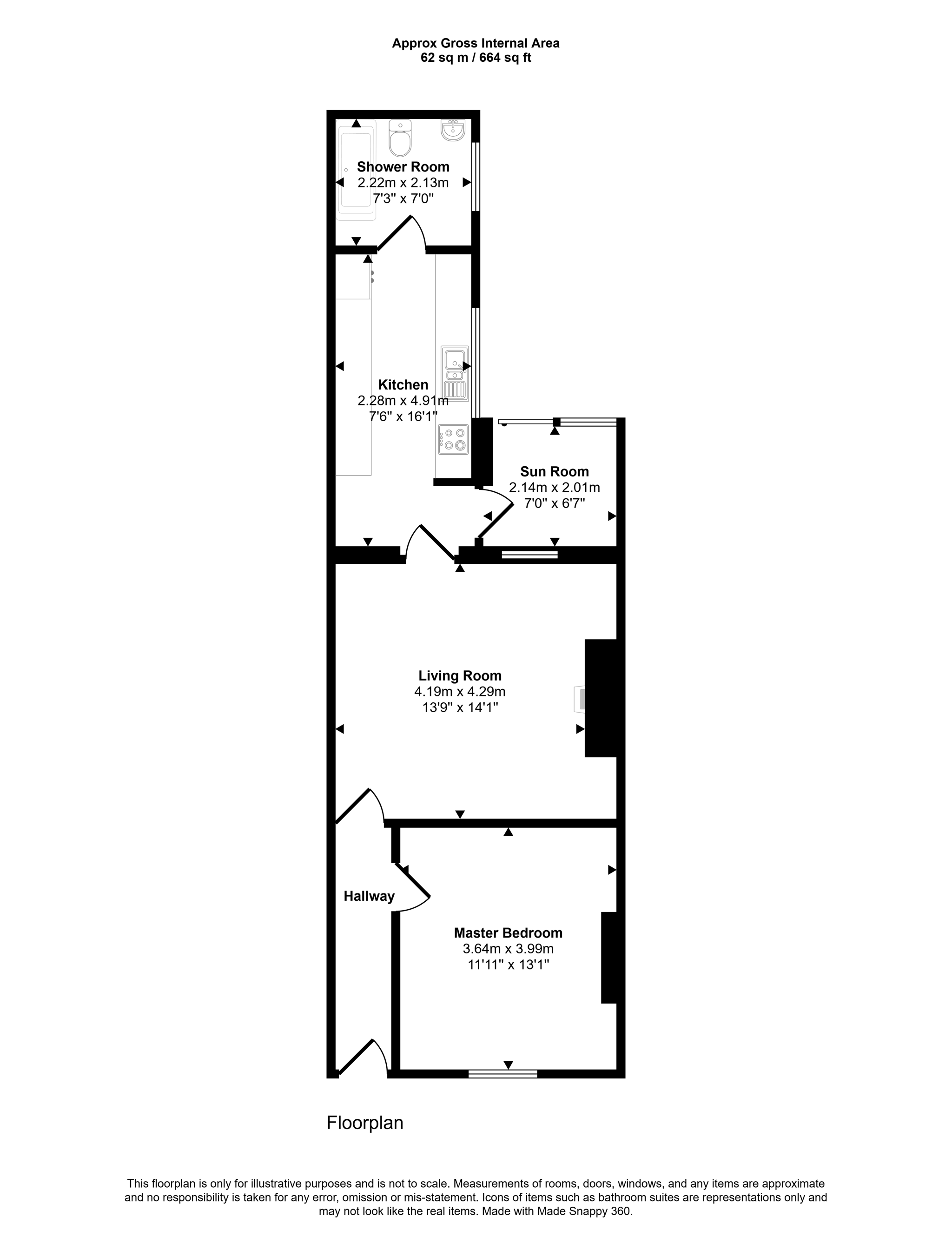
Rear aspect UPVC double glazed window. GCH radiator. Carpet flooring. Feature fireplace

Rear aspect UPVC double glazed window. Wall and base cabinets. Integrated oven and hob. Plumbing for appliances. Stainless sink

Front aspect UPVC double glazed window. GCH radiator. Carpet flooring.

Rear aspect UPVC double glazed patio door. Carpet flooring

Rear aspect UPVC double glazed window. GCH radiator. Carpet flooring. Walk in shower cubicle. Vanity basin and W/C
Whether you’d like an instant online estimate or an expert visit to discuss your home in detail, our team will give you clear, honest advice and help you plan your next move.
Find out what your current home could sell for, based on real market data and recent sales.
Get seen everywhere buyers look
Fast, secure and often great value. Discover how it works.