St. Aidans, Seahouses, Northumberland, NE68 7SS
Gravel Driveway parking for multiple vehicles | Lawn with mature shrub borders | Single Garage | Gate access into rear garden

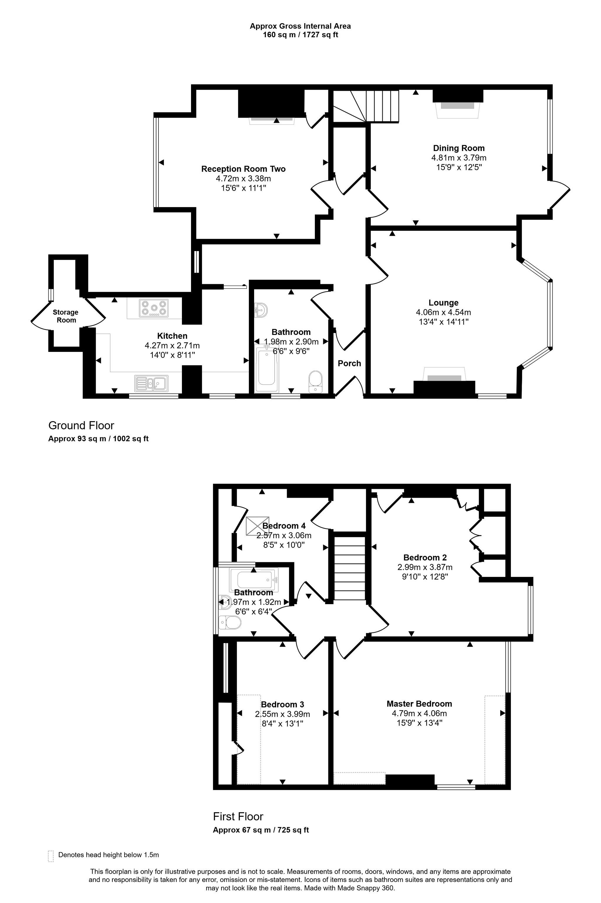
Giving access to Lounge, Dining room, Reception room two, Kitchen and downstairs bathroom

4.06m x 4.54m (13'3" x 14'10")
Feature Fireplace | Bay window to front elevation | Central heating radiator

4.27m x 2.71m (14'0" x 8'10")
Top and base units | Stainless steel sink | Integrated Oven with electric hob | Windows to side elevation | Central heating radiator | Back door into porchway giving access to rear garden

4.72m x 3.38m (15'5" x 11'1")
Feature fireplace | French doors leading out to rear garden | Central heating radiator

1.98m x 2.90m (6'5" x 9'6")
Window to side elevation | Bath | Decorative Washbain | WC | Central heating radiator

4.81m x 3.79m (15'9" x 12'5")
Window to front elevation | Porch to front door | Central heating radiator | Stairs to first floor

4.79m x 4.06m (15'8" x 13'3")
Window to front and side elevation | Central heating radiator | Stunning views out to sea

2.99m x 3.87m (9'9" x 12'8")
Built in wardrobes | Window to front elevation | Central heating radiator

1.97m x 1.92m (6'5" x 6'3")
Window to rear elevation | Bath with handheld shower | Washbasin | WC

2.55m x 3.99m (8'4" x 13'1")
Window to rear elevation | Central heating radiator

2.57m x 3.06m (8'5" x 10'0")
Built in storage cupboard | Velux window to rear elevation | Central heating radiator

Laid mostly to lawn | Mature shrub borders | Oil tank | Outhouses | Gate access to side elevation | Enclosed garden
Whether you’d like an instant online estimate or an expert visit to discuss your home in detail, our team will give you clear, honest advice and help you plan your next move.

Find out what your current home could sell for, based on real market data and recent sales.
Get seen everywhere buyers look
Fast, secure and often great value. Discover how it works.
