Longston Avenue, Cullercoats, North Shields, Tyne and Wear, NE30 3NG

With access to the rear garden, office, storage cupboard and shower room.

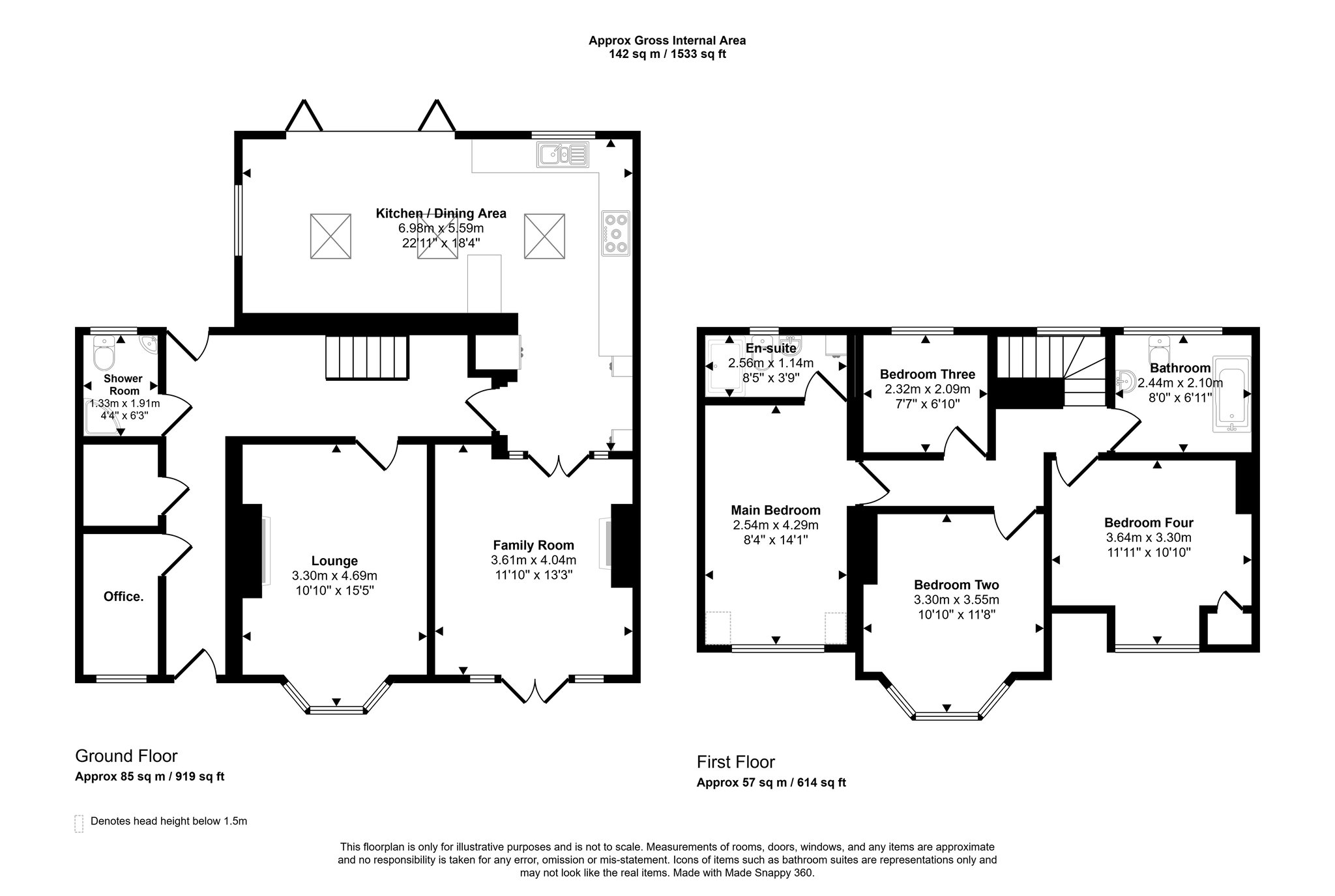
Good sized lounge to the front of the property with double glazed bay window, feature fireplace with living flame gas fire, radiator.
To the front of the property with double glazed window, radiator

1.90m x 1.30m (6'2" x 4'3")
With white suite, shower cubicle, double glazed window wash hand basin, wc

4.00m x 3.60m (13'1" x 11'9")
Double glazed bay with doors to the front garden, radiator, feature fireplace with log burner, doors to the kitchen.

7.00m x 5.60m (22'11" x 18'4")
Stunning fully fitted kitchen with a range of wall and floor units, integrated oven, hob, extractor fan, Velux windows, breakfast bar, integrated dishwasher, fridge freezer, open plan to the dining area with bi fold doors to the rear garden.

4.30m x 2.50m (14'1" x 8'2")
Double bedroom to the front of the property, double glazed window, radiator.

2.60m x 1.10m (8'6" x 3'7")
White suite with shower cubicle, rainfall shower, double glazed window, double sink unit with storage, heated towel rail, wc.

3.60m x 3.30m (11'9" x 10'9")
Double bedroom to the front of the property, double glazed bay window, radiator.

2.30m x 2.10m (7'6" x 6'10")
Single bedroom to the rear of the property, double glazed window, radiator

3.60m x 3.30m (11'9" x 10'9")
Double bedroom to the rear of the property, double glazed window, radiator.

2.40m x 2.10m (7'10" x 6'10")
White suite, part tiled walls, double glazed window, wash hand basin, wc, tiled floor.
Sun trap with Astro turf

Sunny private front garden fenced with Astro turf.
Whether you’d like an instant online estimate or an expert visit to discuss your home in detail, our team will give you clear, honest advice and help you plan your next move.

Find out what your current home could sell for, based on real market data and recent sales.
Get seen everywhere buyers look
Fast, secure and often great value. Discover how it works.
