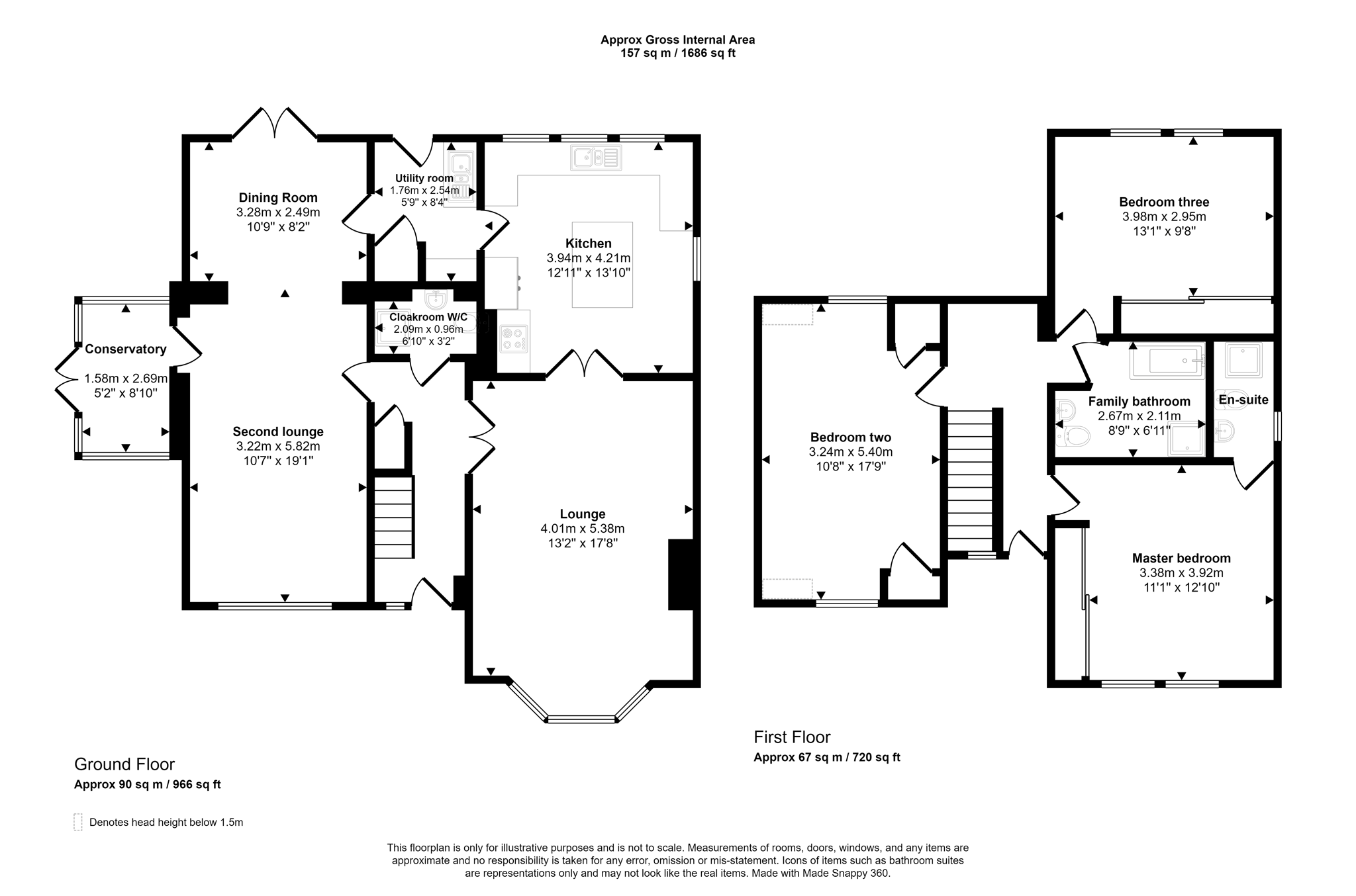
Wardley Hall, Sunderland road., Wardley, Gateshead, Tyne and wear, NE10 8AG

4.01m x 5.38m (13'1" x 17'7")
Double glazed window and gas central central heating radiator.

3.94m x 4.21m (12'11" x 13'9")
Four double glazed window, gas central heating radiator, central island which is moveable with a granite square top work surfaces, sink unit with mixer tap and a waste disposal unit, gas hob with an extractor hood and a electric oven, wall and base unit with square to work surfaces.

1.76m x 2.45m (5'9" x 8'0")
Double glazed door, sink unit with mixer tap, gas central heating radiator, wall and base unit with a built in storage cupboard.

3.28m x 2.49m (10'9" x 8'2")
Low level W/C, wash hand basin, shower cubicle and a gas central heating radiator.

3.28m x 2.49m (10'9" x 8'2")
Double glazed french door and gas central heating radiator.

5.82m x 3.22m (19'1" x 10'6")
Gas central heating, double glazed window and door to conservatory.

1.58m x 2.69m (5'2" x 8'9")
Double glazed window and a french doors to side

3.38m x 3.92m (11'1" x 12'10")
Two double glazed window, fitted wardrobes and a gas central heating radiator.

corner whirlpool bath, shower cubicle, wash hand basin, low level W/C, gas central heating radiator and a Velux window.

Low level W/C, wash hand basin, shower cubicle, double glazed window and a gas central heating radiator.

3.24m x 5.40m (10'7" x 17'8")
Two double glazed window, built in storage cupboard and a gas central heating radiator.

3.98m x 2.95m (13'0" x 9'8")
Two double glazed window, fitted wardrobes and a gas central heating radiator.



power lights and a W/C

Whether you’d like an instant online estimate or an expert visit to discuss your home in detail, our team will give you clear, honest advice and help you plan your next move.
Find out what your current home could sell for, based on real market data and recent sales.
Get seen everywhere buyers look
Fast, secure and often great value. Discover how it works.