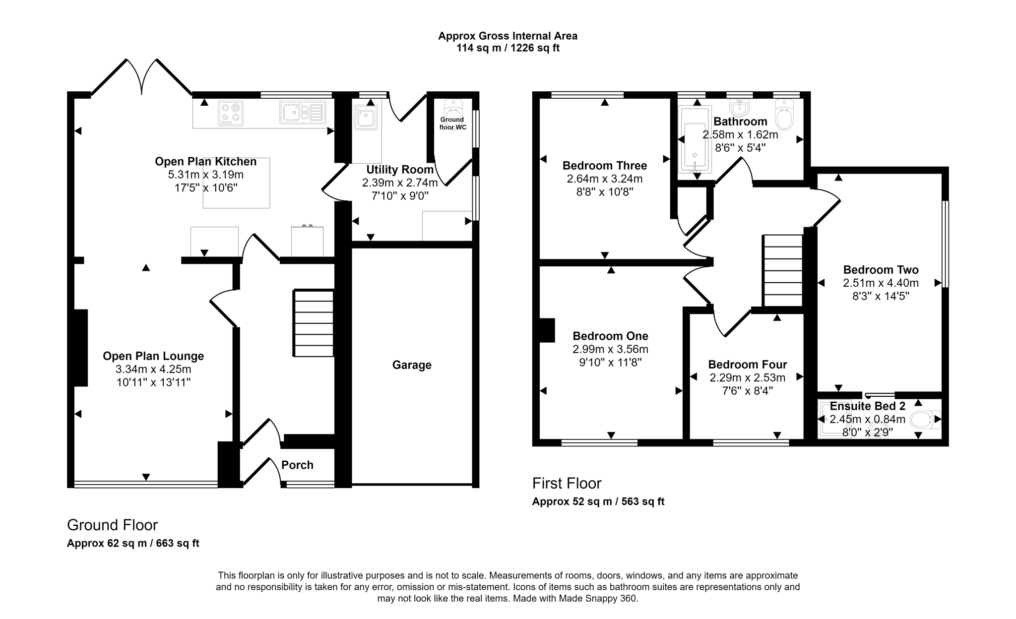
Meadway, Forest Hall, Newcastle upon Tyne, Tyne and Wear, NE12 9RE


entered by the porch with composite door, full length glazed door opening into the hall with stairs to the first floor, wood effect flooring, radiator.

4.25m x 3.34m (13'11" x 10'11")
UPVC double glazed window to the front elevation, wood effect flooring, radiator, open through to the dining area and kitchen.

5.31m x 3.19m (17'5" x 10'5")
UPVC double glazed window to the rear elevation, a range of re-fitted units with complimenting work surfaces, built-in electric oven and microwave, vertical wall mounted radiator, stainless steel drainer with mixer flexi spray tap, recessed spotlights to the ceiling, induction hob with angled hood, wood effect flooring, UPVC double glazed French doors opening out into the garden, access to the utility and ground floor W/C, additional radiator to the dining area.
UPVC double glazed windows to the side and rear elevation, wood effect flooring, radiator, UPVC double glazed door out to the rear garden, access to the ground floor W/C.
UPVC double glazed window to the side elevation, wood effect flooring.
3.56m x 2.99m (11'8" x 9'9")
UPVC double glazed window to the front elevation, radiator.
4.40m x 2.51m (14'5" x 8'2")
UPVC double glazed window to the side elevation, radiator.

2.45m x 0.84m (8'0" x 2'9")
Step-in shower cubicle with mains shower, wall mounted chrome towel rail, tiled floor, vanity unit with wash basin inset, low level W/C;, recessed spotlights, partial tiling to the walls.

3.24m x 2.64m (10'7" x 8'7")
UPVC double glazed window to the rear elevation, radiator, built-in storage cupboard.

2.53m x 2.29m (8'3" x 7'6")
UPVC double glazed window to the front elevation, radiator.

2.58m x 1.62m (8'5" x 5'3")
UPVC double glazed window to the rear elevation, panelled bath with mains shower incorporating splash screen, partial tiling to the walls, wall mounted chrome towel rail, concealed W/C;, vanity unit with wash basin.
Externally there are gardens to the front, side and rear with a drive for off street parking with the space to extend to multiple car parking. To the rear of the property there is a private fenced enclosed garden making it an ideal play area for the children and outdoor entertaining and barbecuing.
Whether you’d like an instant online estimate or an expert visit to discuss your home in detail, our team will give you clear, honest advice and help you plan your next move.

Find out what your current home could sell for, based on real market data and recent sales.
Get seen everywhere buyers look
Fast, secure and often great value. Discover how it works.
